Red Sunset
Zgrada A: Stan 9
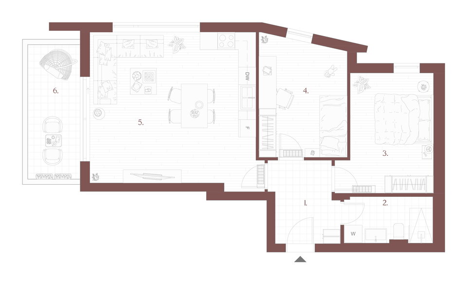
Tlocrt stana
Status:
dostupan
Kat:
2
Površina:
73.78 m²
Broj soba:
3
Hodnik
6,28
Kupaonica
4,75
Spavaća soba
12,38
Dječija soba
12,03
Kuhinja i dnevni boravak
30,04
Balkon
8,30
Ukupno
73,78
Preuzmi PDF
Pošaljite upit za stan Zgrada A: Stan 9
Molimo Vas da provjerite točnost unešenih podataka prije slanja email-a.
Suglasan/na sam da dijelim svoje podatke sa tvrtkom Viking Invest te dozvoljavam istoj da prikuplja i obrađuje moje podatke u vidu uspostavljanja daljnje komunikacije.
Pošalji