Red Sunset
Zgrada B: Stan 26
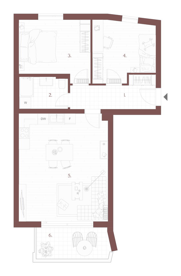
Tlocrt stana
Status:
dostupan
Kat:
4
Površina:
72.14 m²
Broj soba:
3
Hodnik
7,20
Kupaonica
4,73
Spavaća soba
12,59
Dječija soba
11,10
Kuhinja i dnevni boravak
29,43
Balkon
7,09
Ukupno
72,14
Preuzmi PDF
Pošaljite upit za stan Zgrada B: Stan 26
Molimo Vas da provjerite točnost unešenih podataka prije slanja email-a.
Suglasan/na sam da dijelim svoje podatke sa tvrtkom Viking Invest te dozvoljavam istoj da prikuplja i obrađuje moje podatke u vidu uspostavljanja daljnje komunikacije.
Pošalji