Red Sunset
Zgrada B: Stan 13
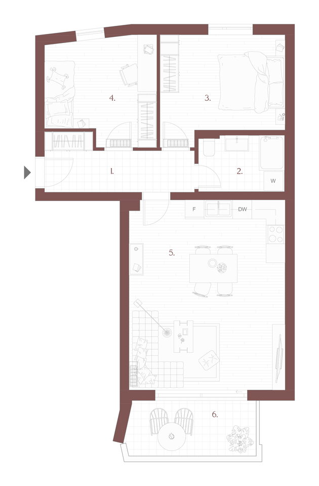
Tlocrt stana
Status:
dostupan
Kat:
2
Površina:
71.58 m²
Broj soba:
3
Hodnik
7,10
Kupaonica
4,73
Spavaća soba
12,42
Dječija soba
11,11
Kuhinja i dnevni boravak
29,15
Balkon
7,07
Ukupno
71,58
Preuzmi PDF
Pošaljite upit za stan Zgrada B: Stan 13
Molimo Vas da provjerite točnost unešenih podataka prije slanja email-a.
Suglasan/na sam da dijelim svoje podatke sa tvrtkom Viking Invest te dozvoljavam istoj da prikuplja i obrađuje moje podatke u vidu uspostavljanja daljnje komunikacije.
Pošalji